您想了解VSI沖擊式制砂機設備相關資料,信息,可填寫您的需求,或通過在線咨詢,電子郵件,電話(同微信)與我們聯系。
vsi制砂機型號一般由字母和4位數字組成,如中譽鼎力公司生產的DLVSI立軸沖擊式制砂機,DL為“鼎力”代表中譽鼎力產品,VSI表示為VSI系列,四位數字為型號的定義(有些廠家以轉子直徑定義)。
河南中譽鼎力是自產自銷30多年的老牌廠家,生產的vsi制砂機不論原材料、質量監管體系、設備出廠質量檢驗、技術服務團隊都可以放心。下文就具體介紹下vsi制砂機型號含義及工作原理。

vsi制砂機型號一般由字母和4位數字組成,如中譽鼎力公司生產的DLVSI立軸沖擊式制砂機,DL為“鼎力”代表中譽鼎力產品,VSI表示為VSI系列,四位數字為型號的定義(有些廠家以轉子直徑定義)。

如型號為DLVSI1150制砂機含義為:中譽鼎力(DL)牌VSI系列沖擊式制砂機設備,轉子直徑為1150mm。
vsi制砂機采用立軸設計,也叫做立式制砂機,該設備具有整形功能,所以也有用戶叫做vsi立軸沖擊式破碎機,以下是中譽鼎力VSI系列沖擊式制砂機的型號參數。
| 型號 | 生產能力(t/h) | 進料尺寸(mm) | 轉速 (r/min) | 雙電機功率 (kw) | 外形尺寸長寬高 (mm) | ||
| 制砂通過量 | 整形通過量 | 制砂 | 整形 | ||||
| DLVSI1263 | 400-480 | 500-580 | <50 | <60 | 900-1300 | 315x2 | 5600x2990x4190 |
| DLVSI1150 | 300-380 | 380-440 | <45 | <55 | 1000-1300 | 250x2 | 5600x2990x4190 |
| DLVSI1145 | 280-350 | 350-400 | <45 | <55 | 1000-1300 | 220x2 | 5600x2990x4190 |
| DLVSI1140 | 250-280 | 300-340 | <40 | <50 | 1100-1400 | 200x2 | 5600x2990x4190 |
vsi制砂機可用于破碎莫氏硬度不大于9級的脆性物料,不建議破碎粘性、含泥土較多的石料。
vsi制砂機進料口在頂部,工作時石料從進料口進入制砂機后通過散料盤被分開,一部分石料落入中間高速旋轉的甩輪被甩出,然后會沖向破碎腔的物料襯層,呈斜上反彈軌跡和另一部分石料相互撞擊、摩擦和研磨,然后通過重力作用離開破碎區域,從機器下部排出機外。

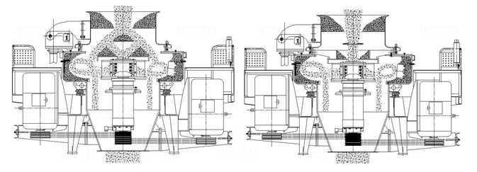
vsi制砂機分全中心進料(右圖)和中心進料伴隨瀑落(左圖)兩種進料方式,破碎方式有“石打石”(圖中轉子左側)和“石打鐵”(圖中轉子右側)兩種,破碎原理相同,不同的是石打石”成品粒形好,“石打鐵”是石料沖擊周護板破碎,比較適合中硬度的石料,破碎效率高。

vsi立軸沖擊制砂機多少錢,被破碎石料硬度、顆粒大小、濕粘程度會影響出料粒度,所以型號的選擇很重要。目前市場上vsi制砂機要幾十萬左右,不過不同廠家制造設備選用的原材料、制造工藝、技術等不同,所以市場上制砂機的報價差距大。
中譽鼎力公司生產的沖擊制砂出砂率一般是95%以上,相比其它制砂機提高了20%左右。是集“石打石”和“石打鐵”破碎模式于一體,可整形可制砂,具有破碎比大,出料粒度
vsi制砂機型號一般由字母和4位數字組成,如中譽鼎力公司生產的DLVSI立軸沖擊式制砂機,DL為“鼎力”代表中譽鼎力產品,VSI表示為VSI系列,四位數字為型號
您想了解VSI沖擊式制砂機設備相關資料,信息,可填寫您的需求,或通過在線咨詢,電子郵件,電話(同微信)與我們聯系。