時產5000噸的旋回破碎機價格多少錢一臺
時產5000噸旋回破可選兩臺HGC600(粗碎)或HGC480(粗碎)型號。時產5000噸的旋回破碎機價格比起一般的小型設備要貴很多,大型碎石機在制造的過程中花費的材料更多,造價成本較大,價格自然會高很多。具體一臺時產5000噸的旋回破碎機價格多少,需要了解客戶實際的生產需要,通過工程師進行選型并報價。
滿足時產5000噸的臥式旋回破碎機,一般多采用雙機碎石作業,以下以中譽鼎力DLHGC臥式旋回破碎機為例,簡單介紹下時產5000噸DLHGC臥式旋回破碎機型號及價格。

中細碎臥式旋回破碎機
中譽鼎力技術部工程師歷經無數個晝夜的研發、創新、試驗,自主研發設計的DLHGC臥式旋回破碎機問世,是針對鐵礦石、銅礦石、鵝卵石等各種硬度礦石物料的碎石機器,設計產量在800-3500噸/時,將解決年產1000萬噸級,硬巖破碎設備的選型問題。
| 設備型號 | HGC600(粗碎) | HGC480(粗碎) | HGC480(粗碎) |
| 給料口尺寸 | 2560mm×1400mm | 1840mm×1478mm | 1840mm×1054mm |
| 給料粒度 | ≤1200mm | ≤1000mm | ≤400mm |
| 排礦口調整范圍 | 120~260mm | 120~250mm | 50~120mm |
| 生產能力 | 2500~3500t/h | 1400~2400t/h | 800~1600t/h |
| 主機功率 | 450KW | 355KW | 800KW |
| 設備重量 | 223t(含電機傳動部分) | 111t | 114t(含電機傳動部分) |
| 破碎方式 | 擠壓 | 擠壓 | 擠壓 |
| 排礦口形式 | 恒定 | 恒定 | 恒定 |
| 進料高度 | 4.118m(主機進料口至主機低面的距離) | 3.283m(主機進料口至主機低面的距離) | - |
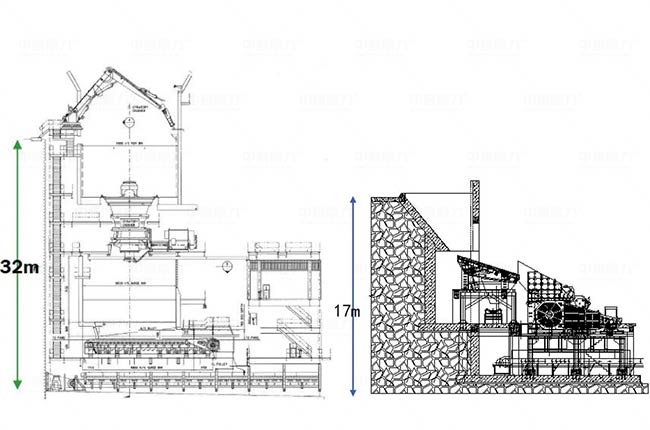
| 生產線建設高度 | ~17m | - | - |
| 適用物料:可破碎抗壓強度不大于320MPa的各種物料,如鐵礦石、銅礦石、石灰石、花崗巖、玄武巖、輝綠巖、頁巖、石英石、河卵石等。 | |||

粗碎臥式旋回破帶料試機
由中譽鼎力技術部工程師自主研發設計的DLHGC臥式旋回破碎機憑借其破碎能力強、安裝高度低、損耗小,投資成本低、可智能化控制等優勢已在多個項目上得到了成功應用。

山西省忻州市地下鐵礦旋回破破碎現場圖

河南遠大新材年產1000萬噸臥式旋回破使用現場
中譽鼎力DLHGC臥式旋回破碎機針對地下采礦或大型移動破碎作業具有對優勢,旋回輥平衡單元設計,更易于安裝在鋼結構上使用,實現大型礦山快速建廠。臥式旋回破碎機設備的優勢還有:
1、礦石進料高度約50%-60%;
2、基礎設施建設成本約60%-70%;
3、大大型礦山破碎現場投資成本;
4、針對地下采礦破碎作業具有顯著優勢;
5、旋回輥平衡單元設計更易于安裝在鋼結構上使用;
6、助力實現大型礦山快速建廠;

傳統旋回破和臥式旋回建設高度對比
時產5000噸旋回破可選兩臺HGC600(粗碎)或HGC480(粗碎)型號。時產5000噸的旋回破碎機價格比起一般的小型設備要貴很多,大型碎石機在制造的過程中花費的材料更多,造價成本較大,價格自然會高很多。具體一臺時產5000噸的旋回破碎機價格多少,需要了解客戶實際的生產需要,通過工程師進行選型并報價。
10秒登記 快速獲取